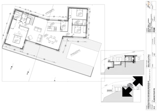
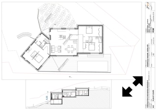
DESCRIPTIF du projet


Ce projet de résidence de vacances est situé au sommet d’une colline à Campomoro -  Corse-du-Sud. L’orientation de la maison a été déterminée par la vue mer, sur la Méditerranée et le terrain très accidenté.

Les espaces de vie se posent sur les espaces de services et techniques avec une percée sur l’arrière du terrain donnant l’impression de légèreté à l’ensemble de cet édifice. Offrant ainsi la vue imprenable à ces habitants.

DÉTAILS TECHNIQUES

NATURE DES TRAVAUX

SUPERFICIE

TEMPS ESTIMÉ

BUDGET

CONSTRUCTION NEUVE

150 M2

10 MOIS

850.000 €/HT